Features
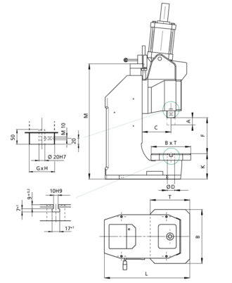
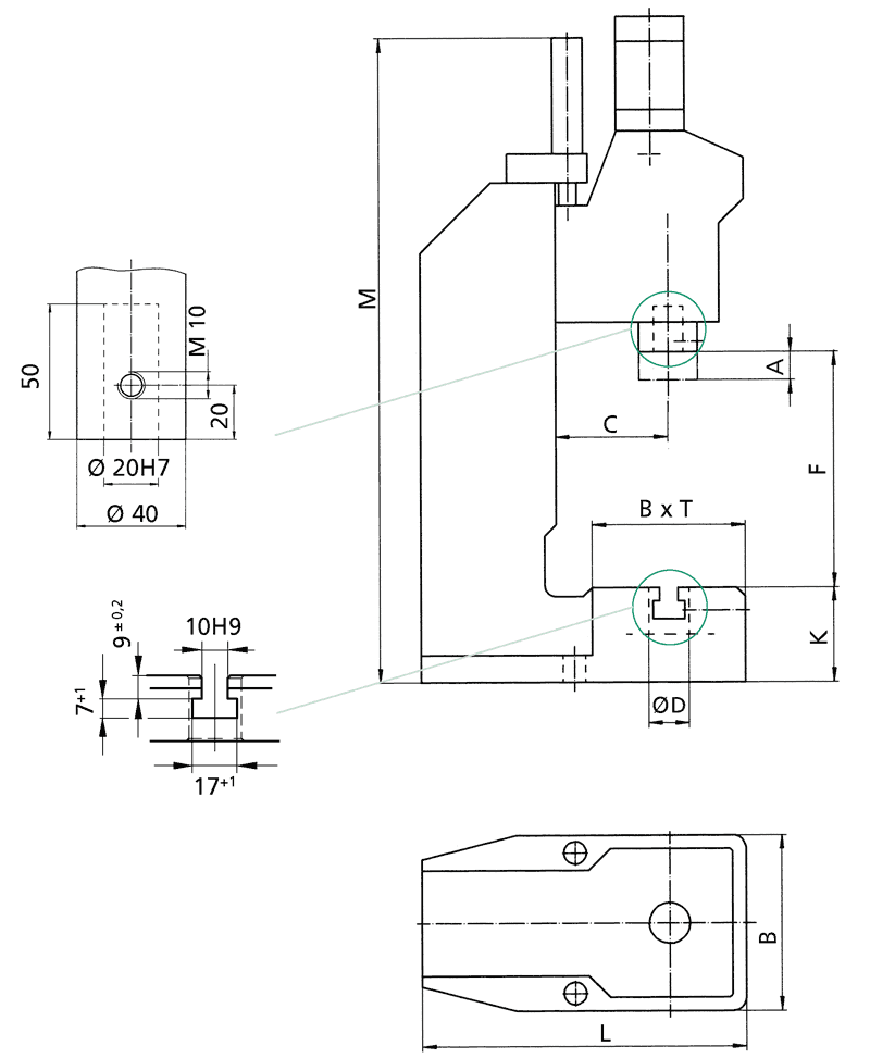
* Cross hole with locking screw in the press table for safe fixture of tool
* Accurate adjustable ram position via fine adjustment (type 33)
* T-slot with set screw in fixture mounting plate to secure bottom tool
The SCHMIDT® PneumaticPress product family in toggle lever design with maximum force at the stroke end is a modular system that optimally meets the requirements from the areas of forming, joining and assembly in the press force range from 15 to 60 kN.
In combination with the SCHMIDT® PressControl 75 or 700 control system, the presses become EC type-tested, CE-compliant workstations, optionally with process monitoring.
The press systems can be used in single cycle as well as in automatic mode.
* Cross hole with locking screw in the press table for safe fixture of tool
* Accurate adjustable ram position via fine adjustment (type 33)
* T-slot with set screw in fixture mounting plate to secure bottom tool
| Press type | 32 | 33 | ||
|---|---|---|---|---|
| Working stroke | A | mm | 0 – 12 4 – 40 6 – 60 | 0 – 12 4 – 40 |
| Nominal force at 6 bar | kN | 15 | 15 | |
| Throat depth | C | mm | 86 | 86 |
| Throat depth frame O | mm | 111, 131 | 111, 131 | |
| Additional fixture mounting plate suitable for throat depth frame | O | O | ||
| Ram bore | Ø | mm | 20H7 | 20H7 |
| Ram diameter | Ø | mm | 40 | 40 |
| Fine adjustment | • | |||
| Working height 1) | F | |||
| Frame No.. 3 | mm | 80 – 205 | ||
| Frame No. 5 | mm | 80 – 350 | 35 – 295 | |
| Frame No. 2-600 o | mm | 200 – 575 | 155 – 520 | |
| Frame No. 2-1000 o | mm | 340 – 1020 | 290 – 970 | |
| Weight | ca. kg | 45 | 50 |
| Frame overview | Press type | Frame height M (mm) | Table size W x D (mm) | Table bore D (Ø mm) | Table height K (mm) | Mounting Surface W x L (mm) |
|---|---|---|---|---|---|---|
| No. 3 | 32 | 540 | 150 x 110 | 20H7 | 60 | 150 x 260 |
| No. 5 | 32, 33 | 536 | 185 x 110 | 20H7 | 60 | 185 x 280 |
| Frame No. 2-600 o | 32, 33 | 974 | 200 x 160 | 20H7 | 98 | 200 x 290 |
| Frame No. 2-1000 o | 32, 33 | 1410 | 200 x 160 | 20H7 | 98 | 200 x 290 |
| Options |
|---|
| • Series standard with no additional charge O Additional charge may applies |
| 1) Typical values; can deviate by ± 3 mm due to casting and production tolerances |
| Special designs |
| Nickel plated – cast parts are electroless nickel plated, steel components black oxide finished, aluminum anodized, precision steel surfaces are untreated |
| Custom Paint – press and column can be painted to customer's color specification |
| Bores for adapting tooling – customer specific sizes can be supplied |
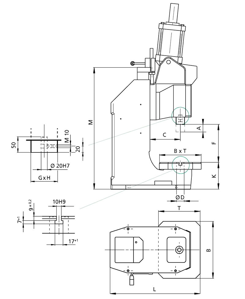
| Press type | 34 | 36 | ||
|---|---|---|---|---|
| Working stroke | A | mm | 0 – 12 4 – 40 6 – 60 | 0 – 12 4 – 40 6 – 60 |
| Nominal force at 6 bar | kN | 28 | 60 | |
| Throat depth | C | mm | 131 | 160 |
| Throat depth frame O | mm | 151 | 185 | |
| Fixture mounting plate suitable for throat depth frame | O | O | ||
| Ram bore | Ø | mm | 20H7 | 20H7 |
| External ram dimensions | G x H | mm | 36 x 63 | 46 x 86 |
| Working height 1) | F | |||
| Frame No.34 | mm | 100 – 250 | ||
| Frame No. 301 | mm | 160 – 400 | ||
| Frame No. 301 – 500 o | mm | 310 – 550 | ||
| Frame No. 35 | mm | 100 – 250 | ||
| Frame No. 35 – 500 o | mm | 150 – 500 | ||
| Frame No. 35 – 600 o | mm | 250 – 600 | ||
| Weight | ca. kg | 90 | 150 |
| Frame overview | Press type | Frame height M (mm) | Table size W x D (mm) | Table bore D (Ø mm) | Table height K (mm) | Mounting Surface W x L (mm) |
|---|---|---|---|---|---|---|
| No. 34 | 34 | 630 | 200 x 160 | 25H7 | 111 | 200 x 370 |
| No. 301 | 34 | 830 | 250 x 200 | 40H7 | 145 | 250 x 460 |
| No. 301 – 500 | 34 | 990 | 250 x 200 | 40H7 | 145 | 250 x 480 |
| Special fixture mounting plate with 3 longitudinal slots o | 300 x 220 400 x 230 | 40H7 | ||||
| No. 35 | 36 | 700 | 300 x 220 | 40H7 | 141 | 300 x 480 |
| No. 35 – 500 | 36 | 990 | 300 x 220 | 40H7 | 166 | 300 x 560 |
| No. 35 – 600 | 36 | 1110 | 300 x 220 | 40H7 | 166 | 300 x 585 |
| Special fixture mounting plate with 3 longitudinal slots o | 355 x 225 400 x 280 | 40H7 |
| Options |
|---|
| O variant with surcharge |
| 1) Typical values; can deviate by ± 3 mm due to casting and production tolerances |
| Special designs |
| Nickel plated – cast parts are electroless nickel plated, steel components black oxide finished, aluminum anodized, precision steel surfaces are untreated |
| Custom Paint – press and column can be painted to customer's color specification |
| Bores for adapting tooling – customer specific sizes can be supplied |
Sie sehen gerade einen Platzhalterinhalt von Standard. Um auf den eigentlichen Inhalt zuzugreifen, klicken Sie auf den Button unten. Bitte beachten Sie, dass dabei Daten an Drittanbieter weitergegeben werden.
Sie sehen gerade einen Platzhalterinhalt von Standard. Um auf den eigentlichen Inhalt zuzugreifen, klicken Sie auf den Button unten. Bitte beachten Sie, dass dabei Daten an Drittanbieter weitergegeben werden.
Sie sehen gerade einen Platzhalterinhalt von Standard. Um auf den eigentlichen Inhalt zuzugreifen, klicken Sie auf den Button unten. Bitte beachten Sie, dass dabei Daten an Drittanbieter weitergegeben werden.
Sie sehen gerade einen Platzhalterinhalt von Standard. Um auf den eigentlichen Inhalt zuzugreifen, klicken Sie auf den Button unten. Bitte beachten Sie, dass dabei Daten an Drittanbieter weitergegeben werden.
Sie sehen gerade einen Platzhalterinhalt von Standard. Um auf den eigentlichen Inhalt zuzugreifen, klicken Sie auf den Button unten. Bitte beachten Sie, dass dabei Daten an Drittanbieter weitergegeben werden.
Sie sehen gerade einen Platzhalterinhalt von Standard. Um auf den eigentlichen Inhalt zuzugreifen, klicken Sie auf den Button unten. Bitte beachten Sie, dass dabei Daten an Drittanbieter weitergegeben werden.